![]() |
| preliminary design v2 |
| our yard & the meadows, south facing, july 2013 |
| view from garden of west facing part of house, june 2013 |
This view of our house as it is now, shows the section that will be removed--the one-story section that has 3 different roof lines!
The big question remains, can the oak and the mulberry trees be saved?!
Oct 18, 2013
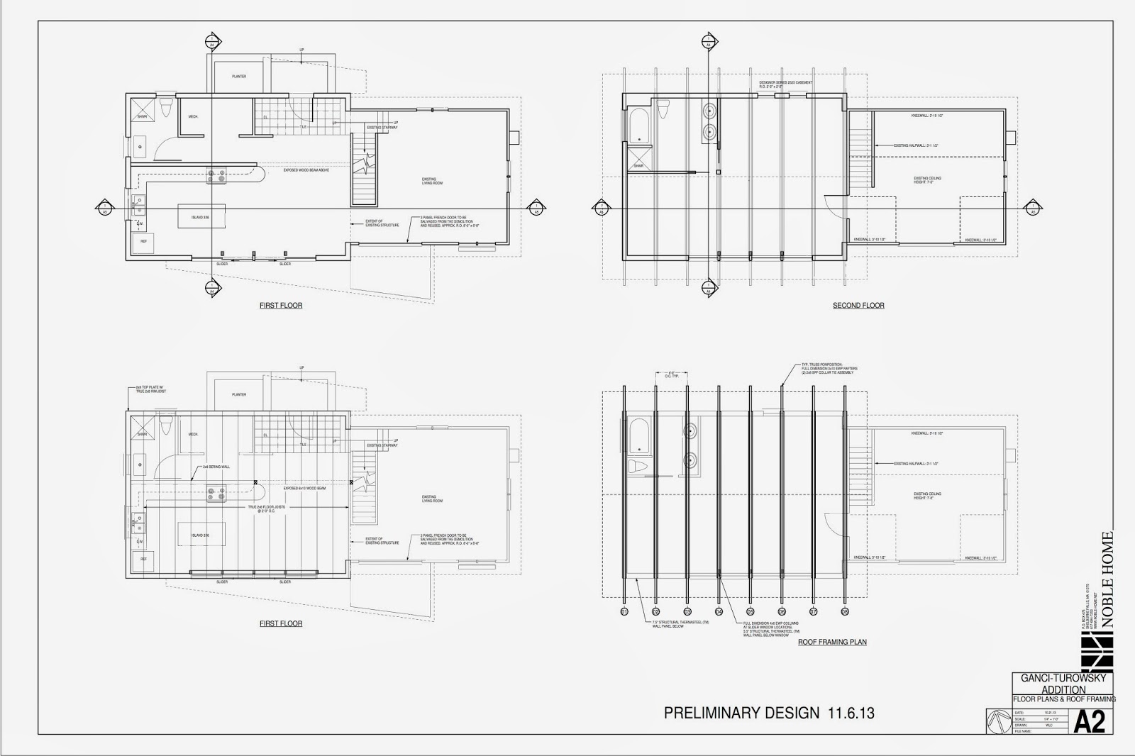
Here's our first official set of preliminary plans! Though we need to switch some things, add some windows and move a few walls, it's an exciting start!
Views of our land and the meadows. Holy green clover!
A view of our house & land, while standing in the meadows just after the farmer took the hay rolls


No comments:
Post a Comment